kontakt: biuro@projekty-lublin.pl

Projekt domu Murator C06S

Pod dębem


wizualizacja frontowa duża

Projekt C06S to projekt przygotowany do realizacji w technologii drewnianej tzn. z bali drewnianych i ocieplony, tak aby mógł być użytkowany przez cały rok. Układ i wielkość pomieszczeń nie uległ zmianom wobec pierwotnej wersji murowej. Również został zachowany charakter ziemiańskiego dworku, a wszechobecne drewno na elewacji oraz wewnątrz tylko dodało uroku. Pozostały także dwa kominki: wewnętrzny (w pokoju dziennym) i zewnętrzny (dostępny z tarasu ogrodowego). Projekt przygotowany jest dla rodziny czteroosobowej, jednak można go również wykorzystać jako dom letni, w którym w okresie wakacji może nocować bez większych kłopotów nawet osiem osób.
Projekty domów z Kolekcji Muratora dostępne są także w wersji lustrzanego odbicia.

Parametry projektu
Pow. użytkowa:103.20 m2
Pow. całkowita:106.90 m2
Pow. zabudowy:130.00 m2
Min. szer. działki:22.50 m
Wysokość domu:5.97 m
Kąt nach. dachu:26.00
Kubatura:498.00 m3
Szacunkowe koszty (netto)
Stan zero:22 000 zł
Stan surowy otwarty:79 200 zł
Stan surowy zamknięty:26 700 zł
Instalacje sanitarne:26 800 zł
Instalacje elektryczne:5 700 zł
Wykończenie zewnętrzne:29 200 zł
Razem całość:189 600 zł

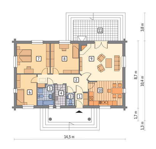
rzut parteru

Opis i metraż pomieszczeń
1. przedsionek 2.8 m2
2. hol 11.0 m2
3. wc 1.6 m2
4. kotłownia 3.7 m2
5. łazienka 5.1 m2
6. sypialnia 10.7 m2
7. sypialnia 18.0 m2
8. sypialnia 13.6 m2
9. pokój dzienny 26.4 m2
10. kuchnia 14.0 m2
11. taras p. 14.2 m2
RAZEM: 121.1 m2

rzut parteru lustro

przekrój

Plan sytuacyjny

Minimalne wymiary działki: 22.50 m x 19.70 m

Projekt dostępny także w technologii murowej (Murator C06).

{ $projekt->ZAKRES_ZMIAN}
{ $projekt->ZAWARTOSC_PAKIETU }

Proponowane materiały

Ławy fundamentowe żelbetowe szerokości 50-60 cm, wysokości 30 cm (24,24 m) 8.84 m<sup>3</sup>
Ściany fundamentowe bloczek betonowy 24 cm + polistyren ekstrudowany 6 cm + rapówka + 2x roztwór asfaltowy obustronnie 60.88 m<sup>2</sup>
Ściany zewnętrzne bal drewniany 12,5x22 cm i folia wiatroizolacyjna + wełna mineralna 10 cm + folia paroizolacyjna + deski 2,5 cm 128.79 m<sup>2</sup>
Ściany wewnętrzne szkielet drewniany + wełna mineralna 8 cm + deski 2 cm obustronnie 97.7 m<sup>2</sup>
Podłoga na gruncie podsypka piaskowa 45 cm + płyta betonowa 10 cm + 2x papa + wełna mineralna 6 cm + legary 8 cm + wykończenie podłogi 112.66 m<sup>2</sup>
Strop drewniany (belka stropowa 16x18 cm) + wełna mineralna 16 cm + folia paroizolacyjna + deski 3,8 cm 135.52 m<sup>2</sup>
Konstrukcja dachu drewniana (krokwiowo-jętkowa) + łaty i kontrłaty 6.67 m<sup>3</sup>
Pokrycie dachu dachówka cementowa lub ceramiczna + folia paroprzepuszczalna 175.0 m<sup>2</sup>
Elewacja na fragmentach ścian płytki klinkierowe 28.5 m<sup>2</sup>
Okna i drzwi balkonowe PCV lub drewniane o powierzchni do 2 m<sup>2</sup> (4 szt.) 3.6 m<sup>2</sup>
Sposób ogrzewania kocioł na gaz