kontakt: biuro@projekty-lublin.pl

Projekt domu Murator C209

Z pomysłem


wizualizacja frontowa duża

Parterowy dom dla posiadaczy kwadratowych działek oraz tych, którzy nie lubią schodów. Zaprojektowany na planie litery L jest stosunkowo niewielki, bo ma tylko 124 m2 powierzchni. Jego wnętrza zostały jednak funkcjonalnie rozplanowane, dlatego z powodzeniem może w nim mieszkać czteroosobowa rodzina. Strefa wejścia dzieli dom w naturalny sposób na dwie części. Na lewo od holu wejściowego mieści się garaż a tuż obok niego kuchnia połączona z jadalnią. Obok znajduje się pokój dzienny, z którego prowadzi wyjście na taras. Na prawo od wejścia ulokowano strefę prywatną, w której z małego korytarzyka można wejść do trzech sypialni oraz łazienki. Mniejsze wc znajduje się w holu. W domu znalazło się jeszcze miejsce na spiżarnię przylegającą do kuchni oraz ulokowane tuż przy garażu pomieszczenie gospodarcze. Prosta bryła domu, przypominająca bungalow, jest nakryta dachem z dachówką ceramiczną lub cementową. Elewacje zostały ozdobione oblicówką drewnianą oraz płytkami klinkierowymi w kontrastowym kolorze.
Projekty domów z Kolekcji Muratora dostępne są także w wersji lustrzanego odbicia.

Parametry projektu
Pow. użytkowa:118.90 m2
Pow. całkowita:143.00 m2
Pow. zabudowy:176.50 m2
Min. szer. działki:24.40 m
Wysokość domu:6.38 m
Kąt nach. dachu:25.00
Kubatura:839.10 m3
Garaż:1 stan.
Szacunkowe koszty (netto)
Stan zero:33 200 zł
Stan surowy otwarty:117 000 zł
Stan surowy zamknięty:39 400 zł
Instalacje sanitarne:39 600 zł
Instalacje elektryczne:8 400 zł
Wykończenie zewnętrzne:43 200 zł
Razem całość:280 800 zł

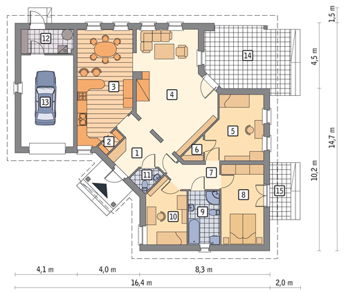
rzut parteru

Opis i metraż pomieszczeń
1. hol 9.6 m2
2. spiżarnia 1.2 m2
3. kuchnia + jadalnia 23.9 m2
4. pokój dzienny 31.1 m2
5. sypialnia 14.1 m2
6. garderoba 1.3 m2
7. korytarz 4.8 m2
8. sypialnia 14.0 m2
9. łazienka 6.9 m2
10. sypialnia 10.0 m2
11. wc 2.0 m2
12. kotłownia 5.3 m2
13. garaż 18.8 m2
14. taras p. 21.9 m2
15. taras p. 5.7 m2
RAZEM: 170.6 m2

rzut parteru lustro

przekrój

Plan sytuacyjny

Minimalne wymiary działki: 24.40 m x 22.70 m

{ $projekt->ZAKRES_ZMIAN}
{ $projekt->ZAWARTOSC_PAKIETU }

Proponowane materiały

Ławy fundamentowe żelbetowe szerokości 30-60 cm, wysokości 35 cm (103,00 mb) 19.13 m<sup>3</sup>
Ściany fundamentowe bloczek betonowy 24 cm 18.27 m<sup>2</sup>
Ściany zewnętrzne murowane, dwuwarstwowe: bloczek wapienno-piaskowy 24 cm +styropian 15 cm + tynk wewnętrzny 142.35 m<sup>2</sup>
Ściany wewnętrzne murowane: bloczek wapienno-piaskowy 24 cm + styropian 10 cm + tynk obustronnie 23.05 m<sup>2</sup>
Podłoga na gruncie podsypka piaskowa 30 cm + folia + styropian 10 cm + folia + płyta żelbetowa 10 cm + szlichta betonowa 5,5 cm + wykończenie podłogi 18.82 m<sup>2</sup>
Strop drewniany (jętki 20 cm) + wełna mineralna 20 cm + folia paroizolacyjna + płyta g-k 158.01 m<sup>2</sup>
Konstrukcja dachu drewniana (krokwiowo-jętkowa) + łaty i kontrłaty 11.22 m<sup>3</sup>
Pokrycie dachu dachówka cementowa lub ceramiczna + folia paroprzepuszczalna 249.52 m<sup>2</sup>
Elewacja na fragmentach ścian płytki klinkierowe 15.45 m<sup>2</sup>
Okna i drzwi balkonowe PCV lub drewniane o powierzchni do 2 m<sup>2</sup> (3 szt.) 2.79 m<sup>2</sup>
Sposób ogrzewania kocioł na gaz