kontakt: biuro@projekty-lublin.pl

Projekt domu Murator DL02aS

Złocisty - wariant I


wizualizacja frontowa duża

Projekt domu Złocisty - wariant I - Murator DL02aS malowniczy dom inspirowany architekturą regionalną znakomicie wpisze się w wiejskie lub podmiejskie otoczenie. W porównaniu z podstawowym wariantem (Murator DL02S) został powiększony o jednostanowiskowy garaż, kotłownię i schowek umieszczone w niższej bryle również przykrytej dwuspadowym dachem. Ze wszystkich stron zaprojektowano w niej okna – tak jak w głównej bryle ozdobione okiennicami – dzięki czemu obie części tworzą harmonijną całość. Wewnątrz domu zwraca uwagę nowoczesny układ wnętrz. Pokój dzienny ma wysokość dwóch kondygnacji, co powiększa optycznie jego przestrzeń, i jest połączony z półotwartą kuchnią. Jednym z największy atutów projektu jest zajmująca szerokość całej bocznej elewacji, całkowicie zadaszona i otoczona balustradą weranda, która otwiera dom na otoczenie, jednocześnie zapewniając intymność wypoczywającym na niej domownikom. W domu zaplanowano dwie sypialnie – jedną na parterze, a drugą na poddaszu, na którą prowadzą drabiniaste schody z przedsionka.
Projekty domów z Kolekcji Muratora dostępne są także w wersji lustrzanego odbicia.

Parametry projektu
Pow. użytkowa:69.00 m2
Pow. całkowita:151.00 m2
Pow. zabudowy:110.20 m2
Min. szer. działki:26.20 m
Wysokość domu:6.51 m
Kąt nach. dachu:40.00
Kubatura:525.90 m3
Garaż:1 stan.
Szacunkowe koszty (netto)
Stan zero:31 300 zł
Stan surowy otwarty:80 400 zł
Stan surowy zamknięty:23 500 zł
Instalacje sanitarne:18 400 zł
Instalacje elektryczne:6 800 zł
Wykończenie zewnętrzne:15 000 zł
Razem całość:175 400 zł

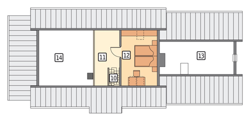
rzut parteru

Opis i metraż pomieszczeń
1. przedsionek 4.7 m2
2. hol 3.4 m2
3. pokój dzienny 28.8 m2
4. kuchnia 4.2 m2
5. łazienka 5.5 m2
6. kotłownia 7.6 m2
7. sypialnia 9.8 m2
8. garaż 26.3 m2
9. taras p. 15.4 m2
RAZEM: 105.7 m2

rzut parteru lustro

rzut poddasza

Opis i metraż pomieszczeń
1. schody 1.3 m2
2. hol 4.3 m2
3. sypialnia 7.0 m2
4. schowek nad garażem 9.4 m2
RAZEM: 22.0 m2

rzut poddasza lustro

przekrój

Plan sytuacyjny

Minimalne wymiary działki: 26.20 m x 15.80 m

{ $projekt->ZAKRES_ZMIAN}
{ $projekt->ZAWARTOSC_PAKIETU }

Proponowane materiały

Ławy fundamentowe żelbetowe szerokości 50 cm, wysokości 40 cm (49,02 mb) 9.8 m<sup>3</sup>
Ściany fundamentowe betonowe 24 cm + 2x roztwór asfaltowy obustronnie + styropian 8 cm 53.92 m<sup>2</sup>
Ściany zewnętrzne szkielet drewniany + folia paroizolacyjna + wełna mineralna 15 cm + folia wiatroizolacyjna + deski 2 cm i 2x płyta g-k 114.11 m<sup>2</sup>
Ściany wewnętrzne szkielet drewniany + wełna mineralna 15 cm + 2x płyta g-k + deski 2 cm obustronnie 28.36 m<sup>2</sup>
Podłoga na gruncie podsypka piaskowa 20 cm + styropian 10 cm + beton 10 cm + 2x papa termozgrzewalna + szlichta betonowa 10 cm + wykończenie podłogi 33.84 m<sup>2</sup>
Strop drewniany (belki stropowe) + folia paroizolacyjna + wełna mineralna 15 cm + deski podłogowe i płyta g-k lub boazeria 71.91 m<sup>2</sup>
Konstrukcja dachu drewniana (krokwiowo-jętkowa) + łaty i kontrłaty 5.54 m<sup>3</sup>
Pokrycie dachu blachodachówka + folia paroprzepuszczalna + wełna mineralna 15 cm + folia paroizolacyjna + boazeria 177.05 m<sup>2</sup>
Elewacja na fragmentach ścian płytki klinkierowe 11.3 m<sup>2</sup>
Okna i drzwi balkonowe drewniane o powierzchni do 2 m<sup>2</sup> (8 szt.) 6.12 m<sup>2</sup>
Okna połaciowe drewniane o powierzchni do 2 m<sup>2</sup> (3 szt.) 1.61 m<sup>2</sup>
Sposób ogrzewania kocioł na gaz, możliwy kocioł na paliwo stałe. Po dostosowaniu na etapie adaptacji, możliwy kocioł na paliwo stałe do 25kW (przy założeniu kotła o wymiarach 70x100x140 cm). Należy przyjąć odległości kotła od ścian zalecane przez producentów, dostosować przewody dymowe i wentylacyjne oraz pomieszczenie do innego rodzaju ogrzewania a skład opału przewidzieć w innym pomieszczeniu lub na zewnątrz budynku.